The Mighty Pacific Lot 2
1712 Square feet
3 bedrooms
2.5 bathrooms
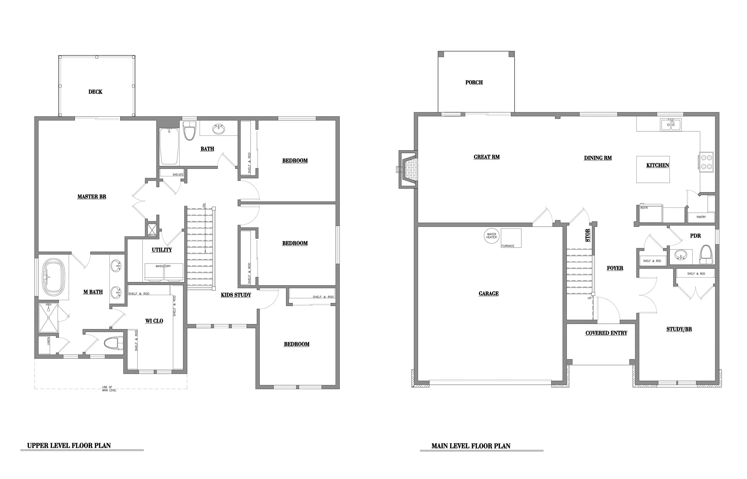
THE SPRING EQUINOX Lot 4
2203 Square feet
4 bedrooms or 5th with downstairs Study
2.5 bathrooms
Deck off of master bedroom with Coast Range view
THE CAPE FALCON Lot 5
What we love most about this home:
Coast Range view
The details:
Four bedrooms or Three bedrooms with an office
Two baths
One half bath
2,002 square feet
THE AUTUMN EQUINOX (Lot 6)
This home has a lovely, comfortable layout - and plenty of room for a family or couple who works from home. The open-plan great room has a central gas fireplace, ideal for cozy winter evenings. The front room has ample built-in space - perfect for a home office. The master suite boasts an oversized walk-in closet and bathroom with large walk-in shower. Covered patios in front and back make it easy to entertain outdoors.
What we love most about this home:
We love all the windows in the great room and dining room! This home also has great extra storage space in the garage - perfect for your kayaks, home-brewing operation, or seasonal decor storage.
The details:
Four bedrooms
Two baths
2,002 square feet
Click to enlarge.
THE SUMMER SOLSTICE Lot 7 (pending)
The details:
Four bedrooms
Master bedroom on the main floor
Two and one half baths
1,762 square feet
THE NEACOXIE (Lot 8)
The details:
Four bedrooms
Two and one half baths
1,749 square feet
THE SEA AND SAND
Click to enlarge.
This home boasts a spacious great room complete with a cozy gas fireplace. It’s perfect for entertaining (or watching the kids play while you cook). The foyer opens into an inviting office (or art studio) space, and the layout flows beautifully from room to room. Living in a single-story home means you’ll never have to lug laundry up and down the stairs. You’ll love the light-filled master suite. The walk-in closet is large enough for all your beach attire, and the bathroom has dual sinks and a large shower.
What we love most about this home:
The covered back patio is perfect for a shaded seating area with a BBQ. It’s a great spot to sit with a glass of wine while you watch the sunset, or to snuggle up with a cup of tea and a book on a crisp fall morning.
The details:
4 bedrooms
2 full baths
1798 square feet
THE WESTWIND
Click to enlarge.
This quaint home has airy, vaulted ceilings in the great room, front office, and master bedroom, so it’s open and light filled even on gray days. The kitchen overlooks the great room and dining room, so you can make and serve dinner while watching a fire crackle in the fireplace. The central laundry room is super convenient, and you’ll love the ample storage throughout the home.
What we love most about this home:
The great room has a door and beautiful double windows opening to the back patio - an ideal flow for entertaining. We also love the gorgeous, craftsman-style details and beachy cedar shingles.
The details:
3 bedrooms
2 full baths
1600 square feet
THE OCEAN PEARL
Click to enlarge.
This house boasts a beautiful open plan great room, a master suite with dual sinks and spacious walk-in closet, and a layout that just makes sense. The laundry room is steps away from three of the bedrooms, making it easy and efficient to get the wash done. The dining room has a lovely large window, perfect for bird watching while sipping your coffee in the morning.
What we love most about this home:
We adore the corner fireplace in the great room! This inviting feature makes the space especially cozy. We also love the front patio - it’s perfect for a rocking chair or two.
The details:
4 bedrooms
2 full baths
1658 square feet
THE TILLAMOOK
This home is a charmer! It has beautiful craftsman style details and two stories. The centerpiece of the home is the open kitchen, dining, and great room. You can turn the kitchen island into a bar or serving area and eat dinner while watching the warm glow of the fireplace. The master suite is large and light filled, and it has a well designed, spacious walk-in closet. The covered back patio is the perfect spot for a barbecue and comfortable outdoor seating.
What we love most about this home:
The view! Large windows on the second story give you a lovely perspective on the neighborhood and surrounding hillsides.
The details:
4 bedrooms
2.5 baths
1816 square feet
Downstairs. Click to enlarge.
Upstairs. Click to enlarge.
THE HAYSTACK ROCK
Click to enlarge.
This comfortable home has a welcoming layout and thoughtful design features throughout. The foyer opens into a lovely open-plan great room, complete with a gas fireplace and a sliding glass door to the back patio. The master suite comes complete with a wide double window, dual sinks, and a large walk-in closet with a little window - so you can choose your outfits in natural light!
What we love most about this home:
We adore the angled kitchen island! It’s such an attractive, welcoming feature. We also love the big double windows in the front bedroom (or office) space, and the conveniently placed linen closet and ample storage options.
The details:
4 bedrooms
2 full baths
1889 square feet
