642 MEADOW LANE, LOT 12
Available Now
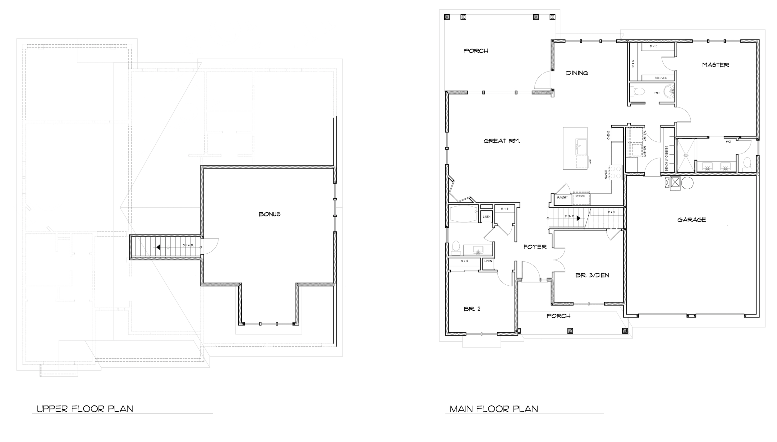
This beautifully crafted, single-level custom home is nearing completion, with an expected finish date between late November and early December 2024. Set in the heart of Gearhart’s most sought-after community, this home embodies coastal style with a modern flair. The flowing, open floor plan invites natural light to fill every corner, while vaulted ceilings add a sense of spaciousness. The stunning kitchen is a showstopper, featuring a large island with honed quartz countertops, abundant cabinetry, stylish pendant lighting, and an enviable walk-in pantry. High-end finishes are found throughout, such as engineered wood floors, thoughtfully selected tile and designer lighting. Perfectly positioned, its just a short distance to the ocean, golf and downtown Gearhart. Don’t miss the opportunity to own this extraordinary home and enjoy the best of the North Coast lifestyle.
653 MEADOW LANE, LOT 21
SOLD
Click to enlarge.
This quaint home is light-filled and spacious. The open-plan great room features built-ins and a cozy gas fireplace (just flip a switch and it blazes to life - no need to fuss with wood!). The ground-floor master suite is luxurious, with a spa-like bathroom and a large walk-in closet with built-ins - perfect for a shoe or handbag collection. It also has a flexible bonus room on the second story and an airy back porch.
What we love most about this home:
The floor plan! We love the extra full bathroom next to the second bedroom - and the convenient flex room just across from the kitchen. If you need a home office, this is a great plan for you.
The details:
4 bedrooms
2 full baths
1 half bath
Bonus room
2530 square feet
658 MEADOW LANE, LOT 14
SOLD
Click to enlarge.
This home has a lovely open floor plan, with a welcoming angled kitchen and spacious great room. It also boasts a gorgeous master suite with two sizable closets and a luxurious bathroom with a tub and walk-in shower. The bathroom feels like a spa - you’ll feel like you’re on vacation all the time. There are also three additional bedrooms (including one with great built-ins - ideal for a home office).
What we love most about this home:
The bonus room! It’s a large, flexible space with a full bathroom and added storage area. Think: home gym, art studio, game room, or even an extra bedroom suite.
The details:
4 bedrooms
3 full baths
2655 square feet
Bonus room
652 MEADOW LANE, LOT 13
SOLD
Click to enlarge.
This spacious one-story home has a large great room, an inviting open kitchen, and a welcoming dining area. The layout flows beautifully from room to room, and you’ll love the classic details throughout the home. Bedrooms one and two have a full bath between them, and there’s a powder room for guests just off the foyer. Adding to the charm, a cozy gas fireplace takes center stage in the great room. Large windows throughout make this an especially light-filled home.
What we love most about this home:
The back porch is a real highlight of this special home. Because it’s set back, it’s nice and private. We also love the master bedroom closet, conveniently placed just off the master bath.
The details:
3 bedrooms
2 full baths
1 half bath
2368 square feet
655 MEADOW LANE, LOT 20
SOLD
This lovely home is the smallest in our Gearhart Meadows portfolio, so it’s ideal if you’re looking to downsize. The layout can’t be beat. The large master suite is in the back of the home, with office spaces or additional bedrooms up front. The great room is light-filled, with a cozy central fireplace. There’s also plenty of room for storage in this home - and it even has a bonus room!
What we love most about this home:
There’s room for a shop in the garage if you’re the handy type. And of course, it’s perfect for extra storage space.
The details:
3 bedrooms
2 full baths
Bonus room
2167 square feet
651 MEADOW LANE, LOT 22
SOLD
This classic home has large windows, a delightful corner fireplace in the great room, and a ground-floor master suite with dual sinks and a sizable walk-in shower. It even has a flexible bonus room on the second story. This is one of the smallest homes in our portfolio for Gearhart Meadows, so if you’re looking for a more intimate space, bookmark this home.
What we love most about this home:
We adore the airy back porch on this home. It’s large enough for outdoor entertaining and the elegant design features really make this home shine.
The details:
3 bedrooms
2 full baths
1 half bath
Bonus room
2194 square feet
MEADOW LANE LOT 17
SOLD
Click to enlarge.
This two-story charmer has a spacious great room with an open kitchen, perfect for entertaining. The ground-floor master suite has a huge walk-in closet and a bathroom with dual sinks, a large walk-in shower, and a tub - perfect for soaking. It also has a shop area in the garage - ideal for all your tools and projects. This home also has two large, covered porches, so you’ve got options when you want to entertain or relax with a cup of tea and a good book.
What we love most about this home:
The architectural details! This classic home has fantastic curb appeal - and the interior features are lovely, to boot. We also love the side door that leads right into the laundry room and mud room. When you come home from a walk on the beach, you’ll be able to pop right in and take your sandy shoes off, without getting the front entryway messy.
The details:
3 bedrooms
2.5 baths
2292 square feet
